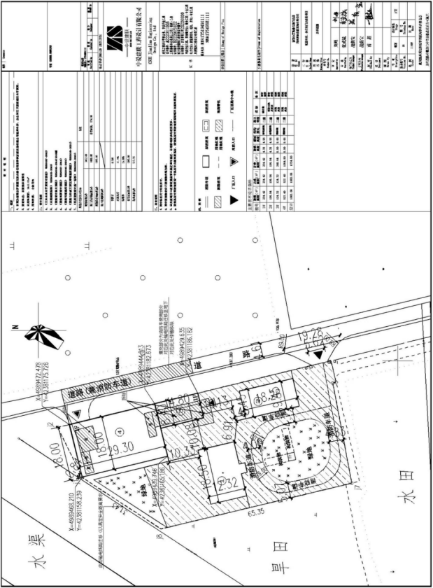
建設單位:前郭爾羅斯蒙古族自治縣利來種植家庭農場有限公司
建設項目名稱:低溫冷庫、辦公室門衛建設項目
建設位置:前郭縣查干湖鎮
建設規模: 總建筑面積1083.08平方米,計容面積1734.8平方米。
公示時間:2024年12月20日-2024年12月26日
根據《中華人民共和國城鄉規劃法》、《吉林省城鄉規劃條例》的規定,現予以公示并征求相關利害關系人意見。如有意見,請在公示期內以書面形式提交,我局將對書面異議進行核實和處理;逾期或者無意見,我局將依法對工程項目進行批復。
公示人:前郭縣自然資源局
聯系地址:松原市松原大路5269號
聯系電話:0438-2816018
